
RECHERCHE
Appartement à vendre F3 à Zoufftgen
- Référence : 112713
- Type : Appartement
- Chambres : 2
- Salle de bain : 1
- Surface habitable : +/-64,56 m2
- Etage : 1
- Prix de vente : 280 800 €
- Honoraires d'agence : 4 %
- Prix de vente hors honoraire : 270 000 €
- Honoraires à la charge : de l'acquéreur
- Année de construction : 2010
Classe énergétique
C
Emission de gaz à effet de serre (GES)
Réalisé après le 1er juillet 2021
NC
Description
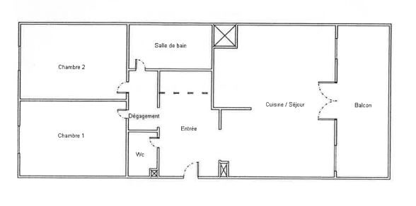
Appartement à vendre Zoufftgen. Appartement situé au premier étage dans une résidence de 2 étages, 11 rue des chênes à ZOUFFTGEN.Venez découvrir ce bien de plus de 64 m² composé d'une entrée avec placard, une pièce de vie de 30 m² avec cuisine entièrement équipée, une salle de bains, un WC individuel et 2 chambres (10,39 et 11,39 m²).
L'appartement est complété par une terrasse d'environ 10 m², un garage et une place de parking.
Aucun travaux à prévoir - Chaudière de 2022
Toiture immeuble refaite en 2024
DPE: C
Taxe foncière: 756 €
Charges mensuelles: 150 €
Honoraires inclus de 4% TTC à la charge de l'acquéreur. Prix hors honoraires 270 000 €. Dans une copropriété de 18 lots. Aucune procédure n'est en cours. Classe énergie C, Classe climat C Montant estimé des dépenses annuelles d'énergie pour un usage standard : entre 860.00 € et 1210.00 € sur les années 2021, 2022 et 2023 (abonnements compris). Les informations sur les risques auxquels ce bien est exposé sont disponibles sur le site Géorisques : georisques.gouv.fr.
Caractéristiques
Intérieur
Non communiqué
Sanitaires
Salle de bain1
Toilette séparée1
Extérieur
Balcon10 m²
Nb de parking externe1
Voiture
Garage1
Place de parking1
Chauffage / climatisation
ChauffageOui
Chauffage au gazOui
Bien soumis au statut de copropriété *
Nombre de lots : 18
Charges annuelles : Non communiqué
Le syndicat des copropriétaires fait l'objet d'une procédure** : Non
Statut syndic : Benevole
Localisation
57330, Zoufftgen
Géorisques
Les informations sur les risques auxquels ce bien est exposé sont disponibles sur le site : www.georisques.gouv.fr